Доработка сайта БЦ «Чайка»
Главная страница
Задача
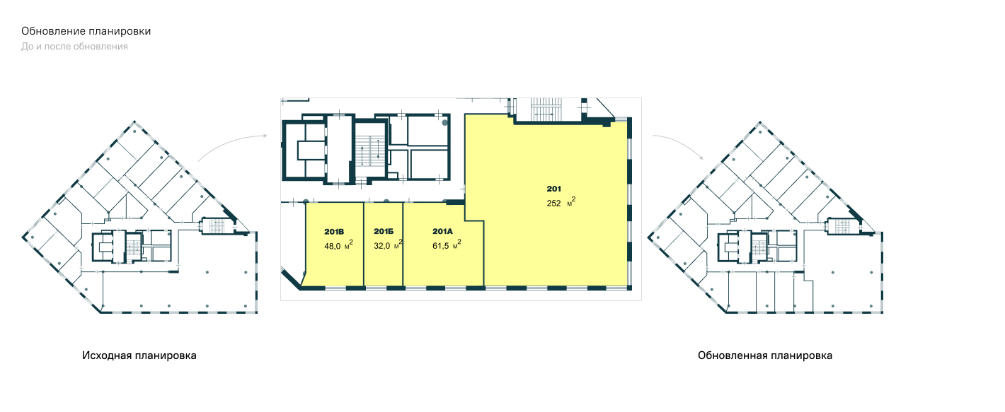
Основная задача на проекте стояла такая - нужно изменить планировку 2 этажа (сделать из одного помещения - три) и изменить данные по площади, ценам для 4, 5, 7 этажей. Новые планы были предоставлены в формате AutoCAD'a.
Цветовая палитра
Макеты сайта
Результаты
Проанализировав проект, стало ясно, что в админке сайта данные по помещениям лежат в плоском виде, и внутри каждого элемента зашита область от плана.
Дабы изменить планировку нужно сначала воссоздать весь план, который был разделен и смешан с разметкой и стилями на странице.
Чтобы это сделать, план из svg был перенесен в Adobe Illustrator, куда также был перенесен исходник новой планировки из AutoCAD. После этого были размечены новые помещения с проставленными номерами и площадями.
Сам план (основу) на сайте пришлось изменить, убрать ненужные стили и js, а также уменьшить количество лишних элементов на самом плане в векторе, ибо если бы в будущем пришлось менять что-то еще, то лишние элементы и границы помешали бы.
Далее, уже по новому плану в админку сайта перенесены обновленные области с плана, проставлены координаты номера помещения и площадей, указаны суммы аренды площадей.
Клиент остался доволен сэкономленным временем на внесение изменений в планировку на сайте, с возможностью оставить весь процесс, как и было до этого.

Как выглядит на сайте:

Данные по проекту